Tipo di immobile
· Posizione
· Prezzo
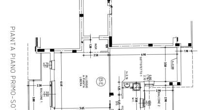
1 appartamento 3 locali in vendita a Lazzate (20824)
In Esclusiva
113 m²
3
2
1
NUOVA COSTRUZIONE SITUATA VICINO ALLE SCUOLE E AL CENTRO DI LAZZATE Contesto di nuova costruzione con tutti servizi principali, in fase di realizzazione, palazzina di due piani fuori terra oltre sottotetti, composta da 10 unità immobiliari,...
Annunci 1-1 di 1
Immobili nelle vicinanze
Voglio
Posizione
Localizzami
Area di ricerca
Tipo di immobile
Superficie minima (m²)
Superficie massima (m²)
Prezzo minimo (€)
Prezzo massimo (€)
Numero di locali
Numero di camere da letto
Numero di bagni
Superficie minima del terreno (m²)
Superficie massima del terreno (m²)
Pertinenze
Tipo
Riferimento




