Tipo di immobile
· Posizione
· Prezzo
1 terreno in vendita a Rialto (17020)
In Esclusiva
5.568 m²
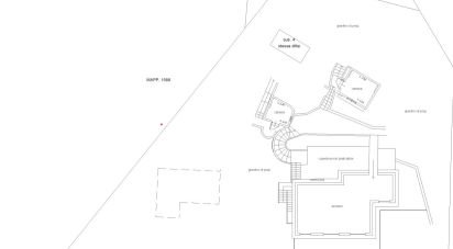
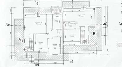
PROGETTO APRROVATO PER LA REALIZZAZIONE DI UNA VILLA BI FAMIGLIARE - A Rialto (SV) , entroterra Finalese e vicino all'ufficio Postale, si cede il progetto approvato per il realizzo di due ville affiancate, gli oneri sono...
Annunci 1-1 di 1
Voglio
Posizione
Localizzami
Area di ricerca
Tipo di immobile
Superficie minima (m²)
Superficie massima (m²)
Prezzo minimo (€)
Prezzo massimo (€)
Numero di locali
Numero di camere da letto
Numero di bagni
Superficie minima del terreno (m²)
Superficie massima del terreno (m²)
Pertinenze
Tipo
Riferimento






