Ristorante di 496 m² in Legnaro (35020)
Caratteristiche
A proposito di questo negozio/locale commerciale a Legnaro (35020)
Vendita Immobile storicamente adibito a bar, ristorante e camere in affitto con ampio parcheggio – località Casone di Legnaro (PD)
Proponiamo in vendita un immobile commerciale di due piani con ampio parcheggio privato, situato in una posizione strategica lungo la strada principale che collega la zona industriale di Padova, la zona artigianale di Villatora-Saonara con il centro di Legnaro e quello di Ponte San Nicolò . La proprietà gode di una visibilità eccellente e di una posizione facilmente raggiungibile, rendendola ideale per attività commerciali, ristorative e ricettive.
Descrizione dell'Immobile:
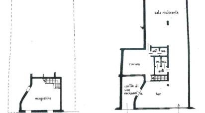
Piano Terra:
•Bar: si presenta con un ampio banco per le colazioni, insiste all’esterno un patio attrezzato con tavolini, perfetto per il relax dei clienti.
•Ristorante: caratteristico, con due sale ristorazione in stile rustico, attualmente utilizzate per la trattoria a pranzo. La cucina è completamente attrezzata, attualmente in uso.
•Magazzino: ampio e funzionale per lo stoccaggio delle materie prime.
•Servizi: bagno per gli ospiti e bagno per i dipendenti, con impianti a norma.
Primo Piano:
•Accessibile tramite una scala esterna indipendente recintata, il primo piano ospita 6 camere matrimoniali, completamente rinnovate, dotate di TV e arredamento moderno, per un servizio di bed&breakfast.
•Ogni camera è provvista di bagno privato, completo di doccia e sanitari nuovi, garantendo il massimo comfort per gli ospiti.
Caratteristiche principali:
•Superficie totale: bar e ristorante con cucina e magazzino occupano circa 350 mq, mentre le 6 camere al primo piano – circa 150 mq, per un totale di circa 500 mq.
•Parcheggio privato: 20 posti auto esclusivi, con facile accesso per clienti e dipendenti.
•Immobile recentemente ristrutturato: ottime condizioni interne ed esterne; attualmente bar, ristorante e bed&breakfast in servizio, gestito dalla proprietà.
Questa proprietà rappresenta un'ottima opportunità per chi cerca un immobile versatile, funzionale e ben posizionato, perfetto per sviluppare attività nel settore della ristorazione, dell'ospitalità o altre attività commerciali.
Per ulteriori informazioni o per organizzare una visita, contattaci al 335-6436113 o via email a nico.sorgato@iad-italia.it
Pertinenze
Interno
Esterno
Altro
Classificazione energetica
Efficienza Energetica:
Questo negozio/locale commerciale si trova a Legnaro (35020).








